Bienvenidos a Castellana Norte, el espectacular proyecto del prestigioso estudio Rafael de La-Hoz, donde prima el detalle arquitectónico y la funcionalidad para sus ocupantes. Luminosidad y singularidad única para dar el máximo confort a sus inquilinos.
Ubicación
Castellana Norte tiene una privilegiada ubicación en la zona norte de Madrid, Las Tablas. Se trata de un área empresarial completamente consolidada de la ciudad, en pleno crecimiento por sus recurrentes desarrollos de edificios de oficinas que acogen a importantes compañías tanto nacionales como internacionales. Esta zona se encuentra en el norte del CBD de Madrid, y forma parte de su futura expansión a través del proyecto Madrid Nuevo Norte con la ampliación del eje Castellana y la intervención urbana de regeneración más grande de Europa.
UBICACIÓN Y COMUNICACIONES
La conexión con las vías de acceso a la ciudad son inmejorables por su cercanía a principales arterias como A-1, M-30, M-40 y M-11, que esta ultima tiene conexión directa con IFEMA y a 15 minutos del aeropuerto Adolfo Suárez Madrid-Barajas: Además, está a sólo 7 minutos del Paseo de la Castellana y a 8 minutos de la estación de tren Chamartín y 15 min de Atocha.
Sobre transporte público, destaca a 9 minutos andando la estación de Las Tablas, con la línea 10 de Metro de Madrid y de la línea ML1 de Metro Ligero. Cuenta con múltiples líneas de autobuses de la EMT (175 y N24 justo enfrente del edificio) con conexión directa a Plaza de Castilla, entre otras, y parada de taxi en la puerta.
ENTORNO Y SERVICIOS
En cuanto a servicios e instalaciones, es un entorno que ofrece gran diversidad como restaurantes, supermercados, colegios, hospitales y gimnasios. Los barrios residenciales que rodean a Castellana Norte son relativamente nuevos, estando en pleno barrio de Las Tablas y cerca de Sanchinarro y Montecarmelo.
Todo esto hace que Las Tablas sea un entorno optimo como elección de las grandes corporaciones y acoge a sedes como la de Telefónica, BBVA, FCC y Dragados, así como una alta concentración de edificios de oficinas con gran tamaño de superficie por planta, lo que hace que sea un opción única fuera de la ciudad para grandes corporaciones.
-
1. MEDIASET
-
2. NOKIA
-
3. BT
-
4. TELEFÓNICA
-
5. SCHINDLER
-
6. PFIZER
-
7. DRAGADOS
-
8. FCC
-
9. CAPGEMINI
-
10. FERROVIAL
-
11. METROVACESA
-
12. CASER
-
13. BBVA
-
14. BMW
-
15. DELOITTE
-
16. IBERDROLA
-
17. EVERIS
-
18. B.O.E
-
-
1. FARMACIAS
-
2. CLÍNICA CEMTRO
-
3. CLÍNICA VASS
-
4. CENTRO MÉDICO LAS TABLAS
-
5. HOSPITAL SANITAS LA MORALEJA
-
6. HOSPITAL UN. HM SANCHINARRO
-
7. COLEGIO ESTUDIANTES
-
8. COLEGIO EL VALLE
-
9. HOTEL HOLIDAY INN
-
10. HOTEL DOME
-
11. HOTEL EXE MADRID NORTE
-
12. EL CORTE INGLÉS
-
13. C.C. MONTECARMELO
-
14. MERCADONA
-
15. AHORRAMÁS
-
16. DÍA
-
17. SUPERCOR EXPRÉS
-
18. MARCO ALDANY
-
-
19. BBVA
-
20. BANCO SANTANDER
-
21. BROOKLYN FITBOXING
-
22. TUBAU GYM
-
23. LAS TABLAS CROSSFIT
-
24. IMOVE GYM
-
25. VIVA GYM
-
26. INSTALACIÓN DEPORTIVA MUNICIPAL:
PISTA DE PADEL, CAMPO DE FUTBOL
-
1. VIPS SMART
-
2. PAPA JOHN’S PIZZA
-
3. LA CHURRASQUITA
-
4. RESTAURANTE LA MURALLA
-
5. LA REVOLTOSA
-
6. LA ESTUPENDA
-
7. RODILLA
-
8. QUEEN BURGER
-
9. MCDONALD’S
-
10. HEALTH AND GO
-
11. SUSHI COME
-
12. OVEN
-
13. TASTY POKE BAR
-
14. LA BRUSCHETTA
-
15. LA LOLA
-
16. THINK CAFÉ
-
17. BURGER KING
-
18. THE CHATTER CAFE
INMEDIACIONES
Castellana Norte
en detalle
28.025 m²
SBA
Flexibilidad y grandes plantas diáfanas
Espacios verdes
Certificación LEED ORO
Parking de bicicletas
y patinetes eléctricos
1:10
Ratio de ocupación
Placas
fotovoltaicas
Crea tu propia implantación y haz una visita virtual
*Disponible a partir del 1 de julio de 2021
EL COMPLEJO
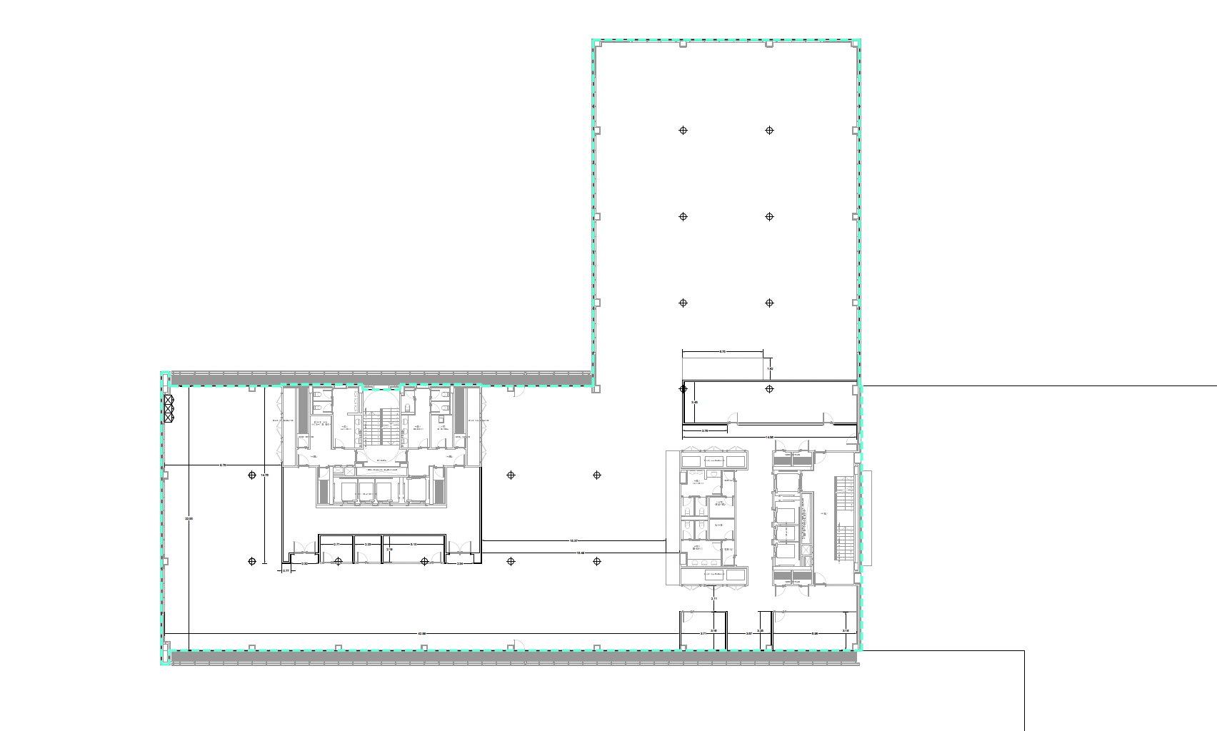
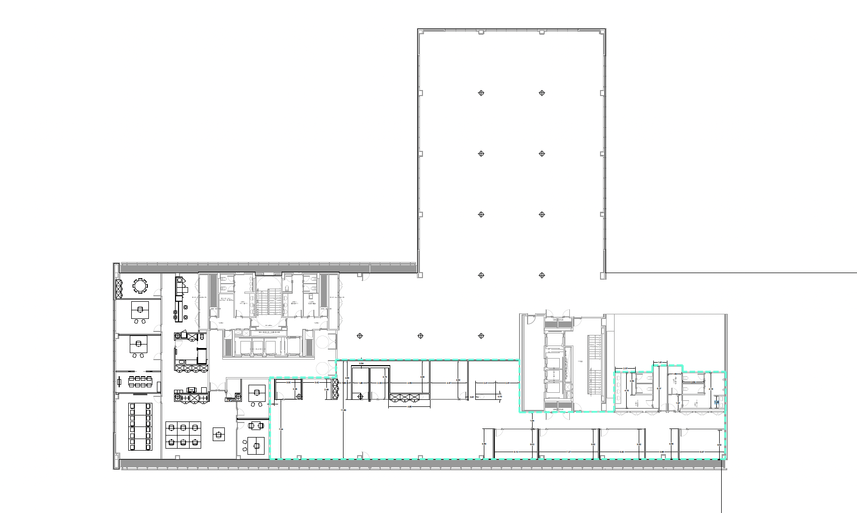
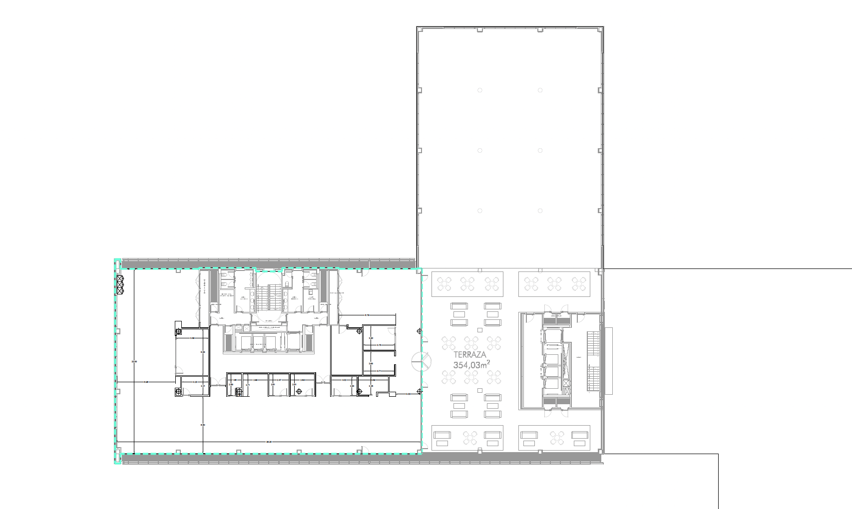
SUPERFICIES Y DISPONIBILIDAD
Ver la disponibilidad de las plantas con
*Disponible a partir del 1 de julio de 2021
PLANOS
El Arquitecto
Rafael de la-Hoz
Castellana Norte es un complejo empresarial proyectado por el prestigioso estudio de arquitectura Rafael de la-Hoz en 2002, donde prima el detalle arquitectónico y la funcionalidad junto a una luminosidad y singularidad únicas para dar el máximo confort a sus inquilinos.
Prioriza la luminosidad en todos sus edificios dotados de zonas exteriores verdes para disfrutar de reuniones informales y desconectar. Destacan en su interior por su gran superficie de planta y la flexibilidad que ofrecen gracias sus espacios diáfanos.
Rafael de La-Hoz es conocido por su arquitectura excepcional y su apuesta por la innovación, la sostenibilidad y la excelencia. La experiencia y conocimiento acumulado durante estos años le ha permitido desarrollar, junto a un experimentado equipo, más de 500 proyectos en 20 países diferentes.
Entre su obra más reciente y representativa podemos encontrar: el Campus de Repsol, el Distrito C de Telefónica, la sede de Endesa, el edificio ‘Pórtico’, la sede de Garrigues y por supuesto, Castellana Norte.
Sostenibilidad y bienestar
Castellana Norte ofrece espacios de trabajo sostenibles y comprometidos con el medio ambiente.
Cuenta con la certificación LEED Gold que asegura el ahorro de energía, agua y recursos, favoreciendo la salud y bienestar de las personas.
Además, posee la certificación energética A y B y el sello Disinfection Monitor emitido por SGS.
.















































